


| ◆專為饋線保護裝置(FTU)配套設計的充電式模塊電源; | ||||||
| ◆具有對外接充電電池智能充放電管理功能;當電池容量不夠時,能自動對電池進行充電,當交流輸入斷電時,電池能不間斷地對負載供電,具有電池過充過放保護功能;具有電池充、放電 狀態 顯示;有電池活化功能,可手動或通過外部信號自動對電池進行活化維護;具有輸出電池欠壓告警和交流輸入失電告警功能和電池活化警告; | ||||||
| ◆輸出最大功率300W,體積小,轉換效率高; | ||||||
| ◆金屬外殼模塊化封裝,端子方式出線,安裝方便; | ||||||
| ◆絕緣安全性好,隔離強度高;,防潮防塵防氧化,抗振動 | ||||||
| ◆采用優質器件,精心設計,可靠性高; | ||||||
| ◆電磁兼容性符合國家標準要求,抗干擾能力強。 | ||||||
二、電源內部結構圖
三、技術參數
| 技術參數 | 測試條件 | 最小值 | 典型值 | 最大值 | |||||
| 輸入參數 | 輸入電壓范圍(Vac) | 165 | 220 | 265 | |||||
| 輸入頻率(Hz) | 47 | 50 | 63 | ||||||
| 輸出電壓(V) | Vi=AC165V~AC265V,Io=0~2A | 26.5 | 27 | 27.5 | |||||
| 輸出電流(A) | Vi=AC165V~AC265V,不含充電電流 | 0 | 2 | 12A(15s) | |||||
| 紋波噪聲(mV) | 全范圍輸入,額定負載 | --- | --- | 200 | |||||
| 源效應(%) | 全范圍輸入,輸出滿載 | --- | --- | ±1 | |||||
| 負載效應(%) | 標稱輸入,10%~100%負載之間變化 | --- | --- | ±1 | |||||
| 出廠設定電池浮充電壓(V) | Vi=AC165V~AC265VIo=2A,IB=0.015A,Ta=25℃ | 26.5 | 27 | 27.5 | |||||
| 電池充電電流(A) | Vi=AC165V~AC265V,Io=2A | 0.2 | 0.5 | 0.7 | |||||
| 電池放電關斷點(V) | 電池放電,Io=2A 以電池電壓為準 | 19.5 | 20 | 21 | |||||
| 電池活化完成點(V) | 電池放電,Io=2A 以電池電壓為準 | 22 | 22.5 | 23.5 | |||||
| 電池欠壓告警點(V) | 電池放電,Io=2A 以電池電壓為準 | 21.5 | 22 | 23 | |||||
| 電池放電延時(S) | 電池放電,Io=2A | --- | 10 | --- | |||||
| 活化觸點接觸時間(S) | 自動化活化時 | --- | 1 | --- | |||||
| 輸出短路保護 | 關斷電源輸出,撤銷自動重啟動 | ||||||||
| 效率(%) | 額定輸入輸出 | --- | 78 | --- | |||||
| 隔離耐壓 | 輸入對輸出:2500VAC/1min/5mA | 2500Vac | --- | --- | |||||
| 輸入對地:2500VAC/1min/5mA | 2500Vac | --- | --- | ||||||
| 輸出對地:2500VAC/1min/5mA | 2500Vac | --- | --- | ||||||
| 告警信號對其他:2500VAC/1min/5mA | 2500Vac | --- | --- | ||||||
| 工作溫度(℃) | 額定輸入輸出 | -40 | --- | 70 | |||||
| 存儲溫度(℃) | 無結露 | -45 | --- | 80 | |||||
| 電磁兼容 | DT/T21-2000標準 | 四級 | |||||||
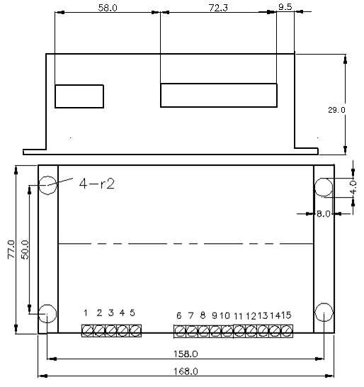
| 外型尺寸 |
長 x 寬 x 高:168*77*29(mm) |
||||||||
四、電源尺寸(單位:毫米)
| 1 | FG | 大地 | 9 | VC | 告警公共端 | |
| 2 | NC | 空腳 | 10 | HK | 遙控活化啟動 | |
| 3 | N | 交流輸入零線 | 11 | HG | 遙控活化退出 | |
| 4 | L | 交流輸入火線 | 12 | V1 | 負載正極 | |
| 5 | NC | 空腳 | 13 | G1 | 負載負極 | |
| 6 | POK | 輸入失電告警 | 14 | B- | 電池負 | |
| 7 | HOK | 活化狀態信號 | 15 | B+ | 電池正 | |
| 8 | VL | 電池欠壓信號 | ||||
五、使用說明
| 5.1 電源指示燈 | |||||||||
| 活化:綠色指示燈,表明電池處于活化狀態; | |||||||||
| 放電:綠色指示燈,表明電源已經停止工作,同時電池在對負載放電或電池處于活化狀態; | |||||||||
| 充電:綠色指示燈,表明電源正常工作,同時在給電池充電。 | |||||||||
| 5.2 電源使用 | |||||||||
| 5.2.1 參見本說明接線示意圖,確保正確連接,本電源適用于對6——30Ah鉛酸電池或膠體免維護電池進行充電; | |||||||||
| 5.2.2 電源本身對負載輸出電流,同時為電池進行恒流充電,當電池充電完成后,電源自動轉為浮充電狀態; | |||||||||
| 5.2.3 當交流斷電時,電池不間斷為負載供電,零切換時間,電池放電至欠壓告警點時,電源輸出電池欠壓告警 信號,當電池放電低于放電關斷點時,延時大約10秒后,電源關閉負載輸出;如果電池需要提前退出,只需要將BG端子對G1短接一次(不小于1秒,但最好不要超過5秒); | |||||||||
| 5.2.4 當負載需要較大電流,超出電源提供的最大電流12A時,電源自身恒流降壓保護,負載電流開始由電池提供。 | |||||||||
| 5.2.5 電池的活化,當電池長時間處于浮充電狀態,應對電池進行活化以免電池極板鈍化,活化可以由外部CPU控制的繼電器把電源的活化端子HK、G1短接一次或手動短接HK、G1(不小于1秒,但最好不要超過5秒)電池進入活化狀態,電源關閉交流輸入,電池放電,當電池放電至活化完成點時,電源重新啟動工作向負載供電并為電池充電;如果電池需要提前退出活化,可以將HG端子對G1短接一次(不小于1秒,但最好不要超過5秒),電池自動退出活化。 | |||||||||
| 5.3 告警端子的使用 | |||||||||
| 告警輸出端子為電子結點(見內部原理圖),在告警時告警結點導通或截止,告警結點帶載能力為0~5mA,告警結點壓降為0.1~2V。 | |||||||||
| 告警結點 | 告警名稱 |
正常時狀態 (或非活化) |
告警時狀態 (或活化) |
||||
| VL | 電池欠壓告警 | 斷 | 通 | ||||
| POK | 交流斷電告警 | 通 | 斷 | ||||
| HOK | 電池活化 | 斷 | 通 |
| 本電源可配用6~30AH鉛酸電池或膠體免維護電池,電池接在電源的電池端子(B+、B-)上,負荷電流小于12A時負載接在電源輸出端子上,非經常性負荷最大電流超過12A時,可直接接在電池上,此時電源的電池放電保護功能失效。 |
| 5.4 按鍵的使用 | |||||||||
| 5.4.1 活化on:輕觸式按鍵,電池活化手動啟動; | |||||||||
| 5.4.2 活化off:輕觸式按鍵,電池活化手動退出; | |||||||||
| 5.5 電池為自動投入,接入電池即可為負載供電。 | |||||||||
六、使用注意事項
| 1、輸出請選用截面積大于1.5mm2的導線,輸入端應加裝保險絲和壓敏電阻。 | |||||||||
| 2、請按圖正確接線,切勿接反,否則將造成電源永久性損壞! | |||||||||
| 3、本產品不具備輸入過壓保護功能,輸入電壓不得超過指標極限值。 | |||||||||
| 4、為進一步降低輸出紋波噪聲,用戶可在輸出端并聯10~470uF電解電容和1uF獨石電容。 | |||||||||
| 5、本產品輸出不允許并聯工作。 | |||||||||
| 6、本機的FG端與外殼連通,FG端應接入大地,以增加抗干擾能力。 | |||||||||
| 7、本電源工作時外殼較熱,最大可達85℃,請在電源周圍保留一定的縫隙保持空氣流動利于散熱,對溫度敏感的裝置盡量遠離電源。 | |||||||||
官方網站
網址:http://www.3x79.com
地址:江蘇省無錫市惠山區錢橋錢洛路1號
總機:0510-80236783
電話:0510-80236795 0510-80231856